射水市 二口分譲地(小学校横)
大門小学校が目の前!
土地坪単価:16.8万円!
県道・高岡青井谷線より、一歩入った閑静な住宅地♪
コンパクトな約45坪
陽当り良好、東向きです♪
■物件資料はこちらをクリック
- 2025年8月完成
- 大門小学校
建築条件付き宅地のメリット
- 土地の坪単価が相場より安い!
- 建物単価の割引有り!
- 外構工事施工の割引有り!
大門小学校が目の前!
土地坪単価:16.8万円!
県道・高岡青井谷線より、一歩入った閑静な住宅地♪
コンパクトな約45坪
陽当り良好、東向きです♪
■物件資料はこちらをクリック
| 区画 番号 |
建築 条件 |
土地面積 | 坪単価 | 土地価格 | 負担金 | 土地 販売価格 |
|---|---|---|---|---|---|---|
| 3 | 有 | 147.51m2 (44.62坪) | 168,000 | 7,496,160 | 377,850 | 7,874,010 |
[ 物件概要 ] ●所在地/射水市二口字轟921-3 ●地目/宅地 ●都市計画/市街化区域 ●用途地域/第一種中高層住居専用地域 ●建ぺい率/60% ●容積率/200% ●道路/幅員6.0m ●設備/水道:公営上水道、排水:公共下水道、電気:北陸電力、ガス:個別LP ●販売態様/売主:株式会社とやまアイホーム(仲介:㈱安心住宅) ●土地負担金/水道加入金:127,850円、上下水道施設負担金:250,000円 ●造成完成/令和7年8月下旬 ※建築条件付き売地は、土地売買契約締結後3か月以内に売主である㈱とやまアイホームとの間で建物の建築工事請負契約が成立することを条件に販売します。万が一この期間内に建築工事請負契約を締結しないことが確定した場合は、土地売買契約の無効が確定し受領済みの手付金等は金額無利息にて速やかに返還いたします。
現地案内地図
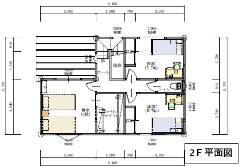
Recommend Plan 推奨プラン
- 建築条件付き売地 建物推奨プラン
- 大門小学校
- 3LDK
※この土地は、土地売買契約締結後3か月以内に、(株)とやまアイホームと建物の建築請負契約を締結することを条件に販売します。
この期間内に建築請負契約を締結されなかった場合は、土地売買契約は白紙となり、受領した手付金等の土地代金は全てお返しいたします。
※建売住宅ではありません。
※上記プランは一例です。プランはお客様が自由に決定できます。
※推奨プランの価格は参考仕様を想定した参考価格です。
※上記プランの場合、土地代金・建物本体費用・外構工事費のほかに、建築確認費用などの諸経費が別途必要です。
※借入諸経費等別途
※設備や植栽、外観の色等は、全てイメージです
●敷地面積:166.89㎡(50.48坪)
●1階面積:57.77㎡(17.47坪)
●2階面積:50.32㎡(15.22坪)
●延床面積:108.09㎡(32.69坪)
●施工面積:110.57㎡ (33.44坪)


