射水市二口(字轟) 3号地
- 参考セットプラン
- 大門小学校
- 3LDK
参考セットプラン
参考セットプラン価格
(消費税込)
2,940万円
※外構工事含む、借入諸経費・各種負担金別途 ※仲介…㈱安心住宅
- 子育てグリーン住宅支援事業 対象住宅 ※予算がなくなり次第終了
◆断熱5クリア・ZEH水準 子育てグリーン住宅支援事業対象住宅 ※国の予算がなくなり次第、終了
大門小学校が目の前!
県道高岡青井谷線より、一歩入った閑静な住宅地♪
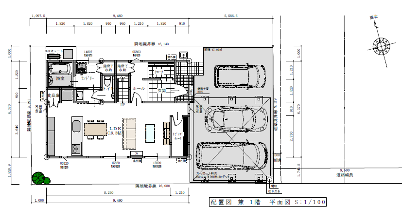
コンパクトな3LDKの間取り!
敷地約45坪の陽当り良好、東向き区画です♪
駐車3台可能♪
〇敷地面積/147.51㎡(44.62坪)
〇1F床面積/57.77㎡(17.47坪)
〇2F床面積/50.32㎡(15.22坪)
〇延床面積/108.09㎡(32.69坪)
〇施工面積/110.57㎡ (33.44坪)
※設備等は、全てイメージです
※仲介㈱安心住宅

