【NEW】富山市 ブライトシーズンⅥ(6)下大久保9号地
- 建築条件付き売地 建物推奨プラン
- 大久保小学校
- 3LDK
参考推奨プラン
土地価格 5,944,820円 (税込)
建物本体価格 23,357,555円 (税込)
外構工事費 2,508,000円 (税込)
※外構工事含む・借入諸経費・各種負担金等別途 ※仲介:㈱安心住宅
※この土地は、土地売買契約締結後3か月以内に、(株)とやまアイホームと建物の建築請負契約を締結することを条件に販売します。
この期間内に建築請負契約を締結されなかった場合は、土地売買契約は白紙となり、受領した手付金等の土地代金は全てお返しいたします。
※建売住宅ではありません。
※上記プランは一例です。プランはお客様が自由に決定できます。
※推奨プランの価格は参考仕様を想定した参考価格です。
※上記プランの場合、土地代金・建物本体費用・外構工事費のほかに、建築確認費用などの諸経費が別途必要です。
※借入諸経費等別途
現地案内地図
◆断熱等級6クリア・ZEH対応
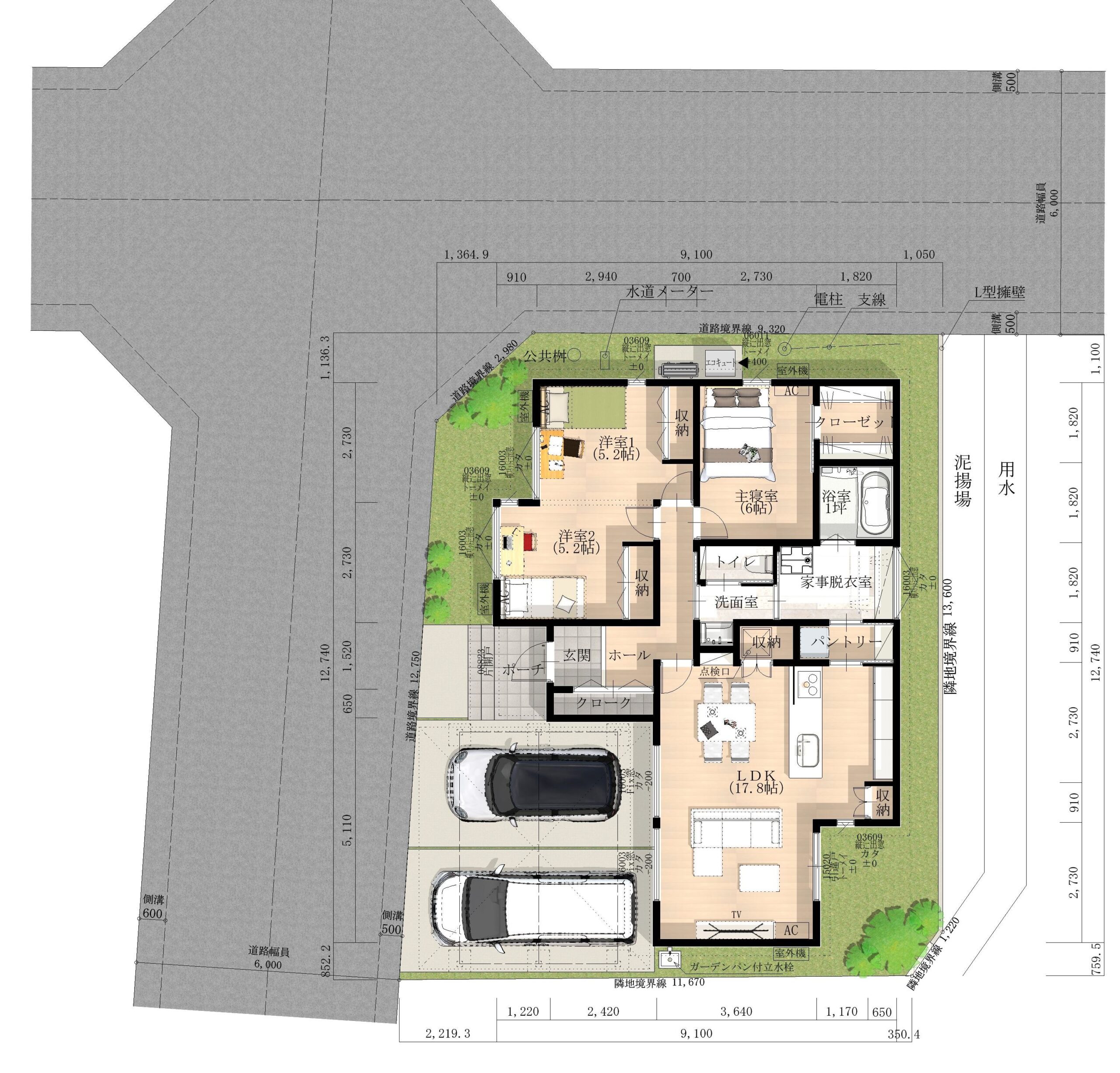
◆コンパクトで効率の良い3LDKの間取り
◆1Fに主寝室プラン、家事ラク動線
◆高耐震・高断熱のプレウォール工法
◆カーポート&LDKエアコン20帖用付
◆開放的なオープンキッチン!タッチレス水栓採用
◆大久保小校区
◆分譲地内角地、消雪完備!
■間取り詳細
・敷地面積:168.75㎡(51.04坪)
・1階面積:67.45㎡(20.40坪)
・2階面積:26.71㎡(8.07坪)
・延床面積:94.16㎡(28.47坪)
・施工面積:95.81㎡(28.98坪)
