富山市 蓮町二丁目【南側】
- 建築条件付き売地 建物推奨プラン
- 荻浦小学校
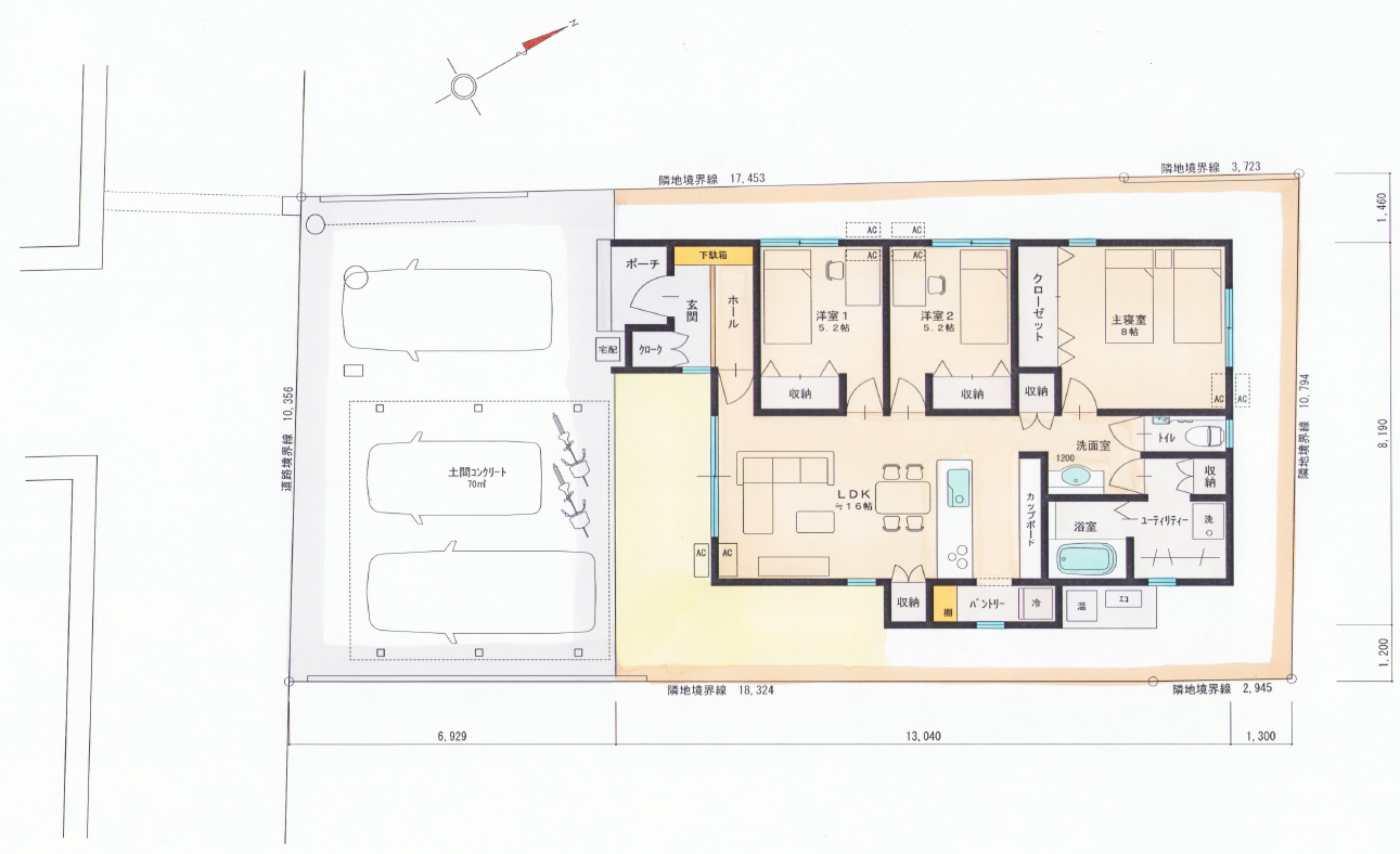
- 3LDK
参考推奨プラン
土地価格 9,438,300円 (税込)
建物本体価格 22,236,500円 (税込)
外構工事費 2,267,650円 (税込)
※売主:㈱とやまアイホーム 仲介:㈱安心住宅 土地代金には、仲介手数料がかかります。
※この土地は、土地売買契約締結後3か月以内に、(株)とやまアイホームと建物の建築請負契約を締結することを条件に販売します。
この期間内に建築請負契約を締結されなかった場合は、土地売買契約は白紙となり、受領した手付金等の土地代金は全てお返しいたします。
※建売住宅ではありません。
※上記プランは一例です。プランはお客様が自由に決定できます。
※推奨プランの価格は参考仕様を想定した参考価格です。
※上記プランの場合、土地代金・建物本体費用・外構工事費のほかに、建築確認費用などの諸経費が別途必要です。
※借入諸経費等別途
※土地代金には仲介手数料が別途必要となります。
