【NEW】富山市 中島三丁目12-9(3号地)
- 参考セットプラン
- 奥田北小学校
- 4LDK

参考セットプラン価格
(消費税込)
3,099万円
※外構工事含む、借入諸経費・各種負担金別途 ※仲介…㈱安心住宅
- 子育てグリーン住宅支援事業 対象住宅 ※予算がなくなり次第終了
- SBI地震補償付住宅※お引渡時から1年間補償
\ 25年10月下旬 造成完成予定 /
奥田北小学校まで 徒歩約6~7分♪
断熱等級5クリア・ZEH水準
子育てグリーン支援事業対象
アクアフォーム工法+TRCダンパー採用!
ドラッグストアやスーパーなど
周辺環境が充実!
富山地方鉄道「越中中島駅」まで
徒歩約4分!!
都市ガス他対応(日本海ガス)
・宅内配管工事費用は、別途計上
洗面化粧台は、ワイドタイプを採用!
ゆったり広々使えます
カーポート&エアコン付!
※詳細は下記迄、お気軽にどうぞ
仲介㈱安心住宅
0120-334-208

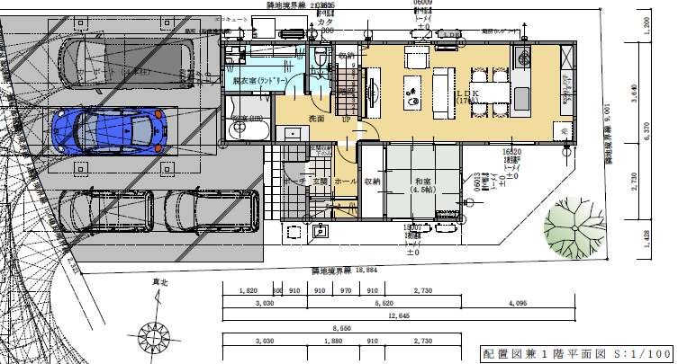
〇敷地面積/190.81㎡(57.71坪)
〇1F面積/61.09㎡(18.47坪)
〇2F面積/46.19㎡(13.97坪)
〇延床面積/107.28㎡(32.44坪)
〇施工面積/109.77㎡(33.20坪)
※図面の植栽やパースは、全てイメージです。
充実の設備・仕様がすべてコミコミ!
